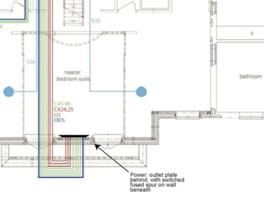
The large screen provides clear viewing from the bed, whilst ceiling speakers are used to keep the walls either side of the screen clear for the curtains. Special speakers are used, which project the sound towards the bed, rather than just beneath their position.
Ultimate Hifi and Home Cinema
Control and Integration
Network, Mac and iDevice
Home
Contact
About
Gallery
<
>
>
© by ivor knox
07785 541456
ivor@ivorknox.com