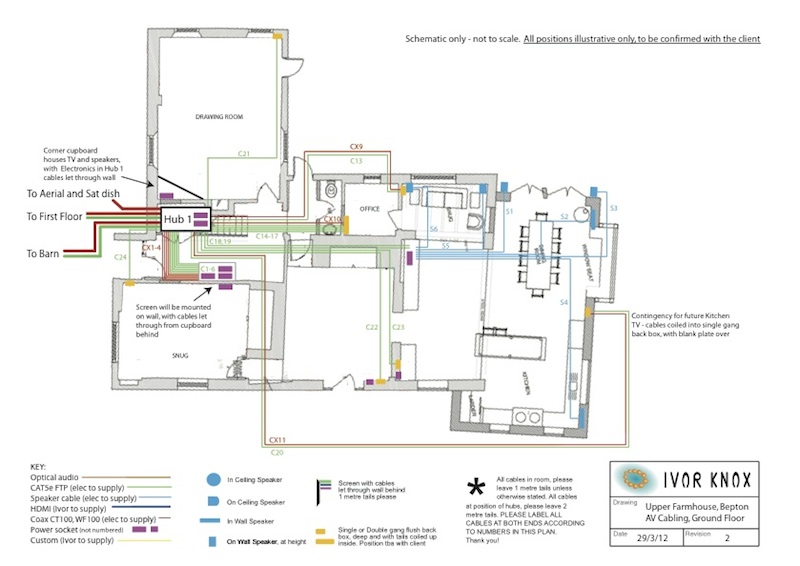
Most projects start with drawings of cable layouts for site electricians to install during works.
Ultimate Hifi and Home Cinema
Control and Integration
Network
, Mac
and iDevice
Home
Contact
About
Gallery
<
>
>
>
>
© by ivor knox
07785 541456
ivor@ivorknox.com